Property Search
Neubau Penthaus mit 255 m2 Fläche kaufen - Es Trenc Strand - Sa Rapita
Objektbeschreibung
Exklusives Neubau-Penthouse nahe Es Trenc kaufen.Nur rund 1 km vom traumhaften Naturstrand Es Trenc entfernt erwartet Sie eines der letzten Neubauhäuser in dieser begehrten Lage. Dieses moderne Penthouse überzeugt mit einem durchdachten Grundriss, hochwertiger Ausstattung und außergewöhnlich viel Außenfläche.
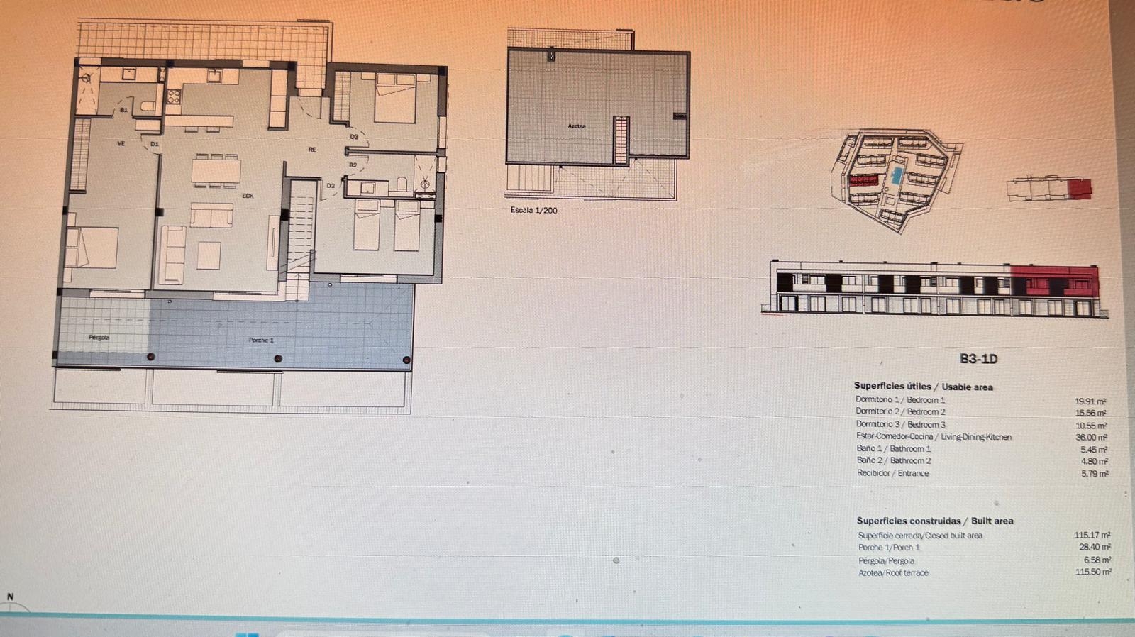
Auf einer Ebene bietet die Wohnung drei helle Schlafzimmer, zwei elegante Bäder sowie einen großzügigen Wohn- und Essbereich mit Zugang zur ca. 30 m² großen Terrasse. Das absolute Highlight ist jedoch die private Dachterrasse mit ca. 115 m² – perfekt für Sonnenuntergänge, entspannte Abende oder gesellige Stunden unter freiem Himmel.
Die stilvolle Wohnanlage ist bereits fertiggestellt und besticht durch ihr modernes, gepflegtes Erscheinungsbild. Ein privater PKW-Stellplatz ist selbstverständlich im Angebot enthalten.
Ein ideales Zuhause oder Feriendomizil in Strandnähe – modern, hochwertig und bereit zum Einziehen.
Ausstattung
Küche mit Miele Geräten, Wärmepumpe und Fussbodenheizung in den Bädern, Klima k/w. Terrassen mit Strom- und Wasseranschluss, Fliesen Feinsteinzeug (im Aussenbereich rutschfest), PKW Stellplatz mit Vorinstallation Ladestation für PKW, Abstellräume, GemeinschaftspoolLage der Immobilie
Sa Rapita oder spanisch auch La Rapita genannt, ist ein kleiner verträumter Fischerort an der Südküste von Mallorca.Direkt an einem Naturschutzgebiet gelegen, schließen mit Ses Covetes und dem Naturstrand Es Trenc zwei der schönsten Strände Mallorcas an.
Da der Yachtclub als zentraler Mittelpunkt von Sa Rapita bezeichnet werden kann, konzentrieren sich die Freizeitangebote, neben Golf und Wandern, hauptsächlich auf Wassersportarten wie Surfen, Segeln und Tauchen.
Energieausweis
Energieeffizienzklasse
A
Energieeffizienzklasse:
A
Wir weisen darauf hin, das sich alle Objekt Angaben auf Informationen des Eigentümers berufen. Für die Richtigkeit dieser Angaben können wir keine Haftung übernehmen.
A-2821-1
Objektdaten
Objektart
Wohnung
Objekttyp
Penthouse
Vermarktungsart
Kauf
externe Objnr
A-2821-1
Wohnfläche
115 m²
Nutzfläche
255 m²
Zimmer
4
Schlafzimmer
2
Badezimmer
2
Außen-Provision
Für Käufer provisionsfrei!
Balkon/Terrasse
Ja
Kabel Sat TV
Ja
Baujahr
2023
Preis
899.000 €
Anfrage
Sofortanfrage
Haben Sie Interesse an diesem Objekt? Bitte füllen Sie das Kontaktformular aus und wir werden Ihre Anfrage unverzüglich bearbeiten.


